TALEP FORMU

Ürünlerimiz hakkında bilgi almak için formumuzu doldurabilirsiniz.

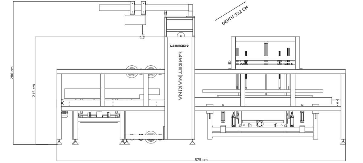
Karakteristik
Mert Makina

Karakteristik